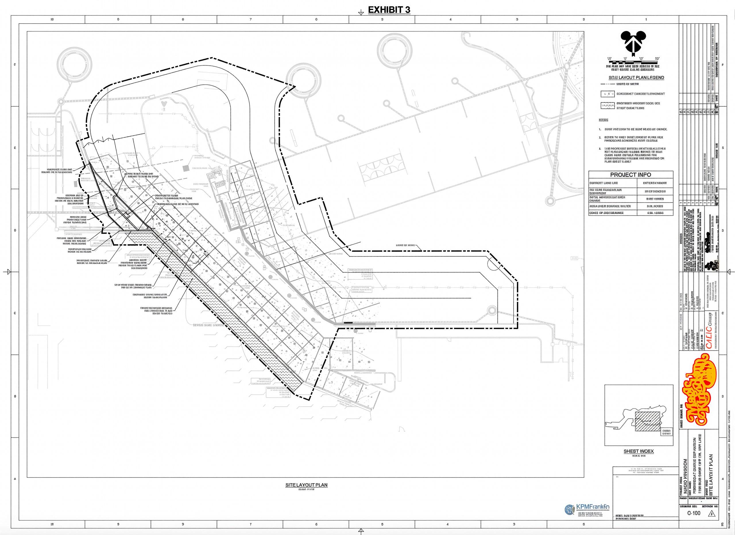
Magic Kingdom Ferry Boat Queue Expansion Permit Plans

Permit plans for the Magic Kingdom Ferry Boat Queue Expansion project at Seven Seas Lagoon, showing dock expansion, hardscape improvements, and floodplain compensation areas.

Photo 1 of 3
Photo 2 of 3
Photo 3 of 3
Magic Kingdom Ferry Boat Queue Expansion Permit Plans
Magic Kingdom Ferry Boat Queue Expansion Permit Plans
Magic Kingdom Ferry Boat Queue Expansion Permit Plans

More from "Magic Kingdom Ferry boats"

Park Hours & Calendar

Updated frequently

Find operating hours, early entry times, and park hopping info across all four Walt Disney World parks.

Lightning Lane Prices

Updated daily

See current Lightning Lane prices for Genie+ and Individual Lightning Lane attractions at all parks.

Dining at Walt Disney World

Dining Guide

Explore restaurants, menus, and reviews for quick service and table service dining across Walt Disney World.

Latest Disney News

Updated multiple times per day

Catch up on the latest park updates, construction news, entertainment, and official announcements.